Villa For Sale in Rojales
Property Summary
Property Features
- Aircondition
- Garden
- Gated complex
- Near bus route
- Parking
- Provision
- Uncovered
Full Details
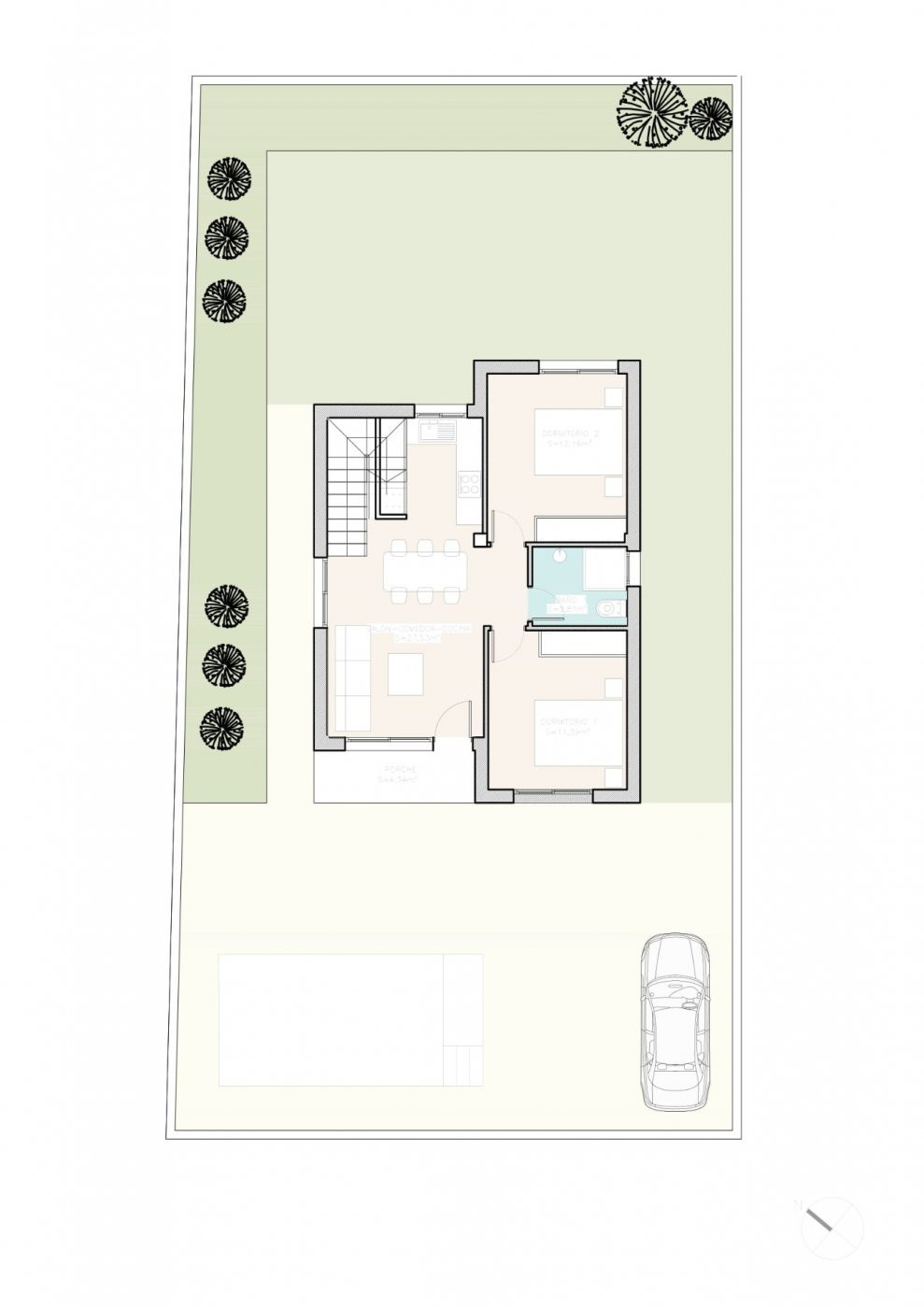
NEW BUILD VILLAS IN ROJALES New Build residential of villas and townhouses in Rojales. Beautiful villa build over 2 floors with 3 bedrooms, 2 bathrooms, open plan kitchen with lounge area and big terrace. Villas build on independent plots where you have garden with parking and space for a private pool. Private pool is an options at an extra cost. There a 3 golf courses nearby and the blue flag beaches are just a short 10 minute drive away. Rojales it is a lovely village with all services such as supermarkets, pharmacies, banks, restaurants and natural park located very close to the villas. There are several golf courses close by as well as water parks in nearby Rojales and Torrevieja. Alicante & Murcia airports are 45 minutes drive away.
















