Villa For Sale in Fuente Álamo
Property Summary
Residential of townhouses, independent and semi-detached villas in Fuente Álamo, Murci
Property Features
- Air Conditioning: Pre-Installed
- Beach: 7500 Meters
- Double Bedrooms: 2
- Garden
- Gated
- Key ready
- Location: Coastal
- Near Golf / Golf Resort Property
- Number of Parking Spaces: 1
- Parking space
- Rural
- Storage / Trastero
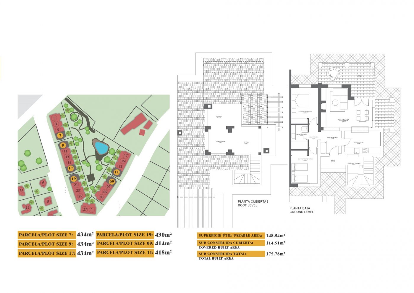
- Terrace: 45 Msq.
- Urbanisation
- Useable Build Space: 148 Msq.
Full Details
KEY READY SEMI-DETACHED VILLA IN FUENTE ALAMO, MURCIA Residential of townhouses, independent and semi-detached villas in Fuente Álamo, Murcia. There are seven different models of houses to choose from, designed to suit everyone’s taste. Rustic designs combined with top quality materials and a focus on comfortable living space there is something for everyone. The residents of this private community of beautiful, spacious homes will also be able to enjoy their own communal gardens and swimming pools. This unusual design semi-detached villa has 2 bedrooms and 1 bathroom, independent kitchen, living room with patio doors leading onto the covered porch and semi covered roof top terrace. An options for a private pool at an extra cost. Fuente Álamo de Murcia is a town and municipality in the Region of Murcia, southern Spain. It is situated 22 km northwest of Cartagena and 35 km south west of Murcia. The town lies in the basin of the Mar Menor surrounded by the mountains of Algarrobo, Los Gómez, Los Victorias and the Carrascoy. The water from these mountains flows down into the Rambla de Fuente Álamo and then onto the Mar Menor. Fuente Álamo located 30 minutes from Murcia - Corvera airport.






























