Villa For Sale in Finestrat
Property Summary
Property Features
- Airport distance: 55000m
- Built-in cabinets
- City views
- Floor: 3
- Golf
- Green areas
- Hospital
- Kitchen: furnished+appliances
- Near Sea
- Parking
- Private garage: 1
- Private parking: 3
- School
- Sea distance: 2500m
- Sea Views
- Toilet: 1
Full Details
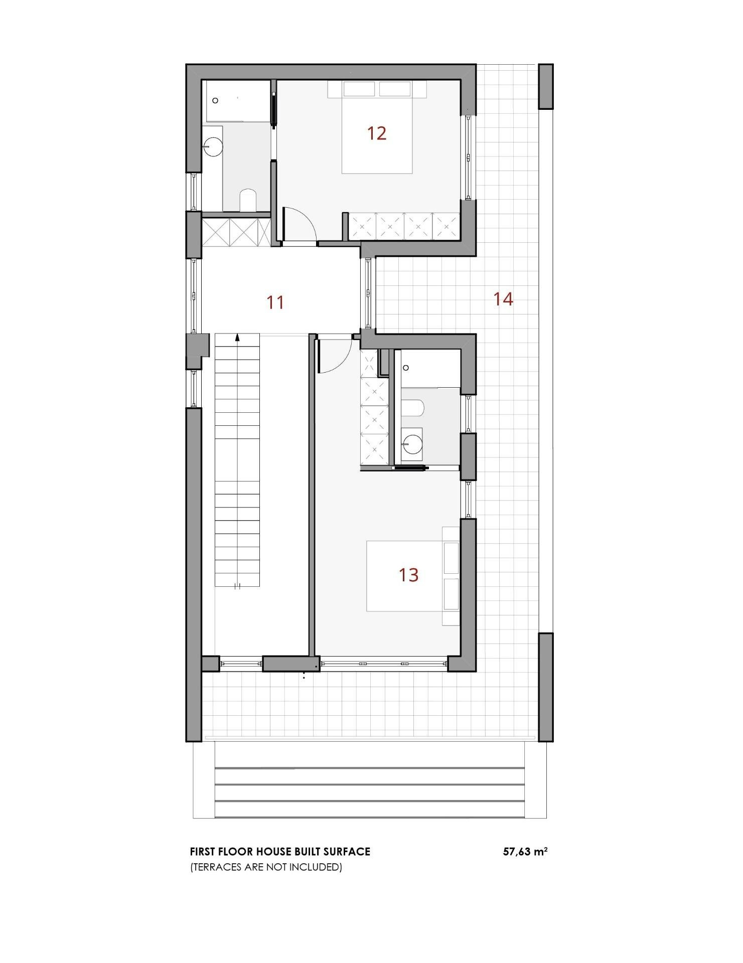
Located in the picturesque town of Finestrat, this exclusive residential complex offers 12 detached villas designed for those seeking a sophisticated and comfortable lifestyle. With sea views, these properties are situated just 2.5 km from the coast, allowing you to enjoy the sea breeze and stunning landscapes. Each home is carefully designed to maximize comfort and privacy, making this place an ideal retreat for families and couples who value tranquility and luxury.OUTDOOR AREASThe exteriors of these homes stand out for their modern and functional design. Each villa features a private garden, perfect for enjoying the Mediterranean climate. The spacious terraces offer an ideal space to relax or entertain guests, while the pergola provides shade and style. Additionally, each property includes a private pool, allowing you to enjoy a refreshing swim in the comfort of your home. Access to a private garage ensures convenience and security for residents.INDOOR AREASThe interior of these homes is designed to offer maximum comfort and functionality. The villas feature 3 bedrooms and options for 2 or 3 bathrooms, adapting to the needs of each family. Ceramic floors add an elegant touch and are easy to maintain. The homes are fully furnished and equipped with modern appliances. Electric shutters and the video intercom add an extra level of comfort and security. Additionally, the underfloor heating system ensures a warm and cozy environment throughout the year. Built-in wardrobes offer ample storage space, maintaining order and aesthetics.COMMON AREASThe residential complex offers common areas that include a community parking area, ensuring that visitors always have a place to leave their vehicles. Additionally, a playground is available for the enjoyment of the little ones, providing a safe and fun space to play and socialize.FINESTRATFinestrat, in the province of Alicante, is a place that combines rural serenity with proximity to popular tourist areas. Although it is not a major tourist destination, its charm lies in its natural beauty and tranquil atmosphere. Tourism in Finestrat focuses on its mountainous surroundings and its proximity to attractions such as the Terra Mitica theme park and its nearby coves, such as Cala Finestrat, ideal for enjoying the sea. The lifestyle in Finestrat is peaceful and nature-oriented. Residents enjoy the quiet life in a rural environment, where tranquillity is valued and community closeness is encouraged. The local gastronomy is based on typical regional dishes with Mediterranean influences. Finestrat offers a serene and natural environment for those seeking a peaceful life close to well-known tourist destinations on the Costa Blanca.
























