Villa For Sale in Benitachell
Property Summary
Property Features
- Air Conditioning
- Alarm System
- Floor heating
- Garage
- newly built
- Terrace
Full Details
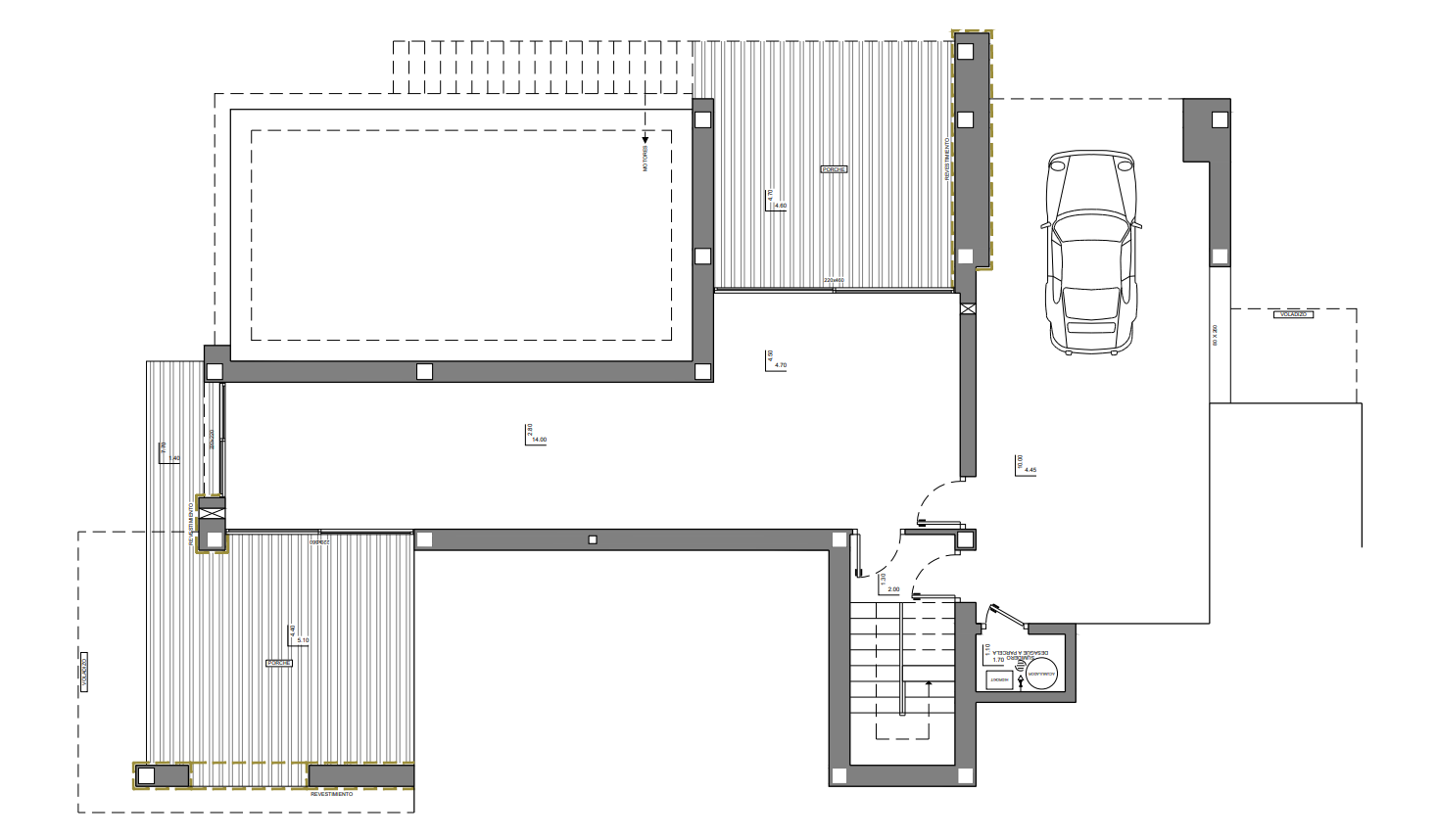
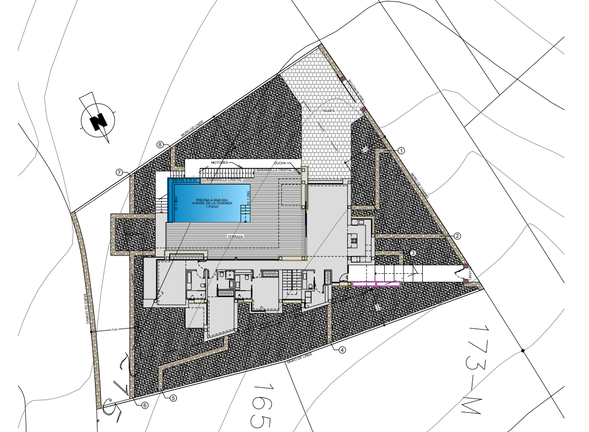
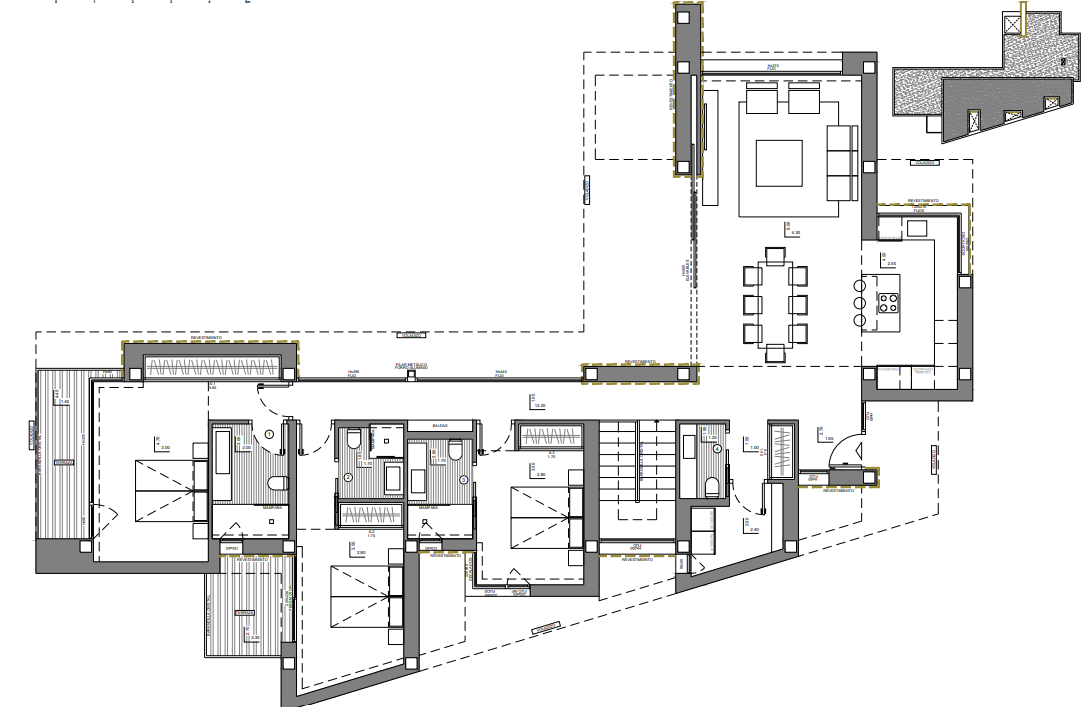
This beautiful, unique villa is located in Cumbre del Sol and offers stunning views over the Mediterranean azure sea and the cliffs of Benitachell. Idyllic beaches are less than a km away, the tourist fishing village of Moraira just 10 minutes' drive away and the sandy beach of Jávea just under 20 minutes' drive. There is an international school, a supermarket and a pharmacy a 5-minute drive away. The entire living and sleeping area is spread over one floor which is level with the terrace and pool area, making it an extremely comfortable villa. The living area consists of a spacious living-dining room with an open kitchen, a laundry room and a guest toilet. From the living room there is direct access through the sliding windows to the terrace, which is partly covered. The sleeping area consists of three double bedrooms each with an en suite bathroom. Two bedrooms also have a private terrace. The ground floor consists of a garage, a large extra room that can be used as an extra bedroom, gym, office, etc. and two covered terraces. There are sea views from almost all rooms. In addition, there is more than 70 m2 of terrace, an infinity pool and an outdoor shower.
























