Land For Sale in Bedar
Property Summary
Full Details
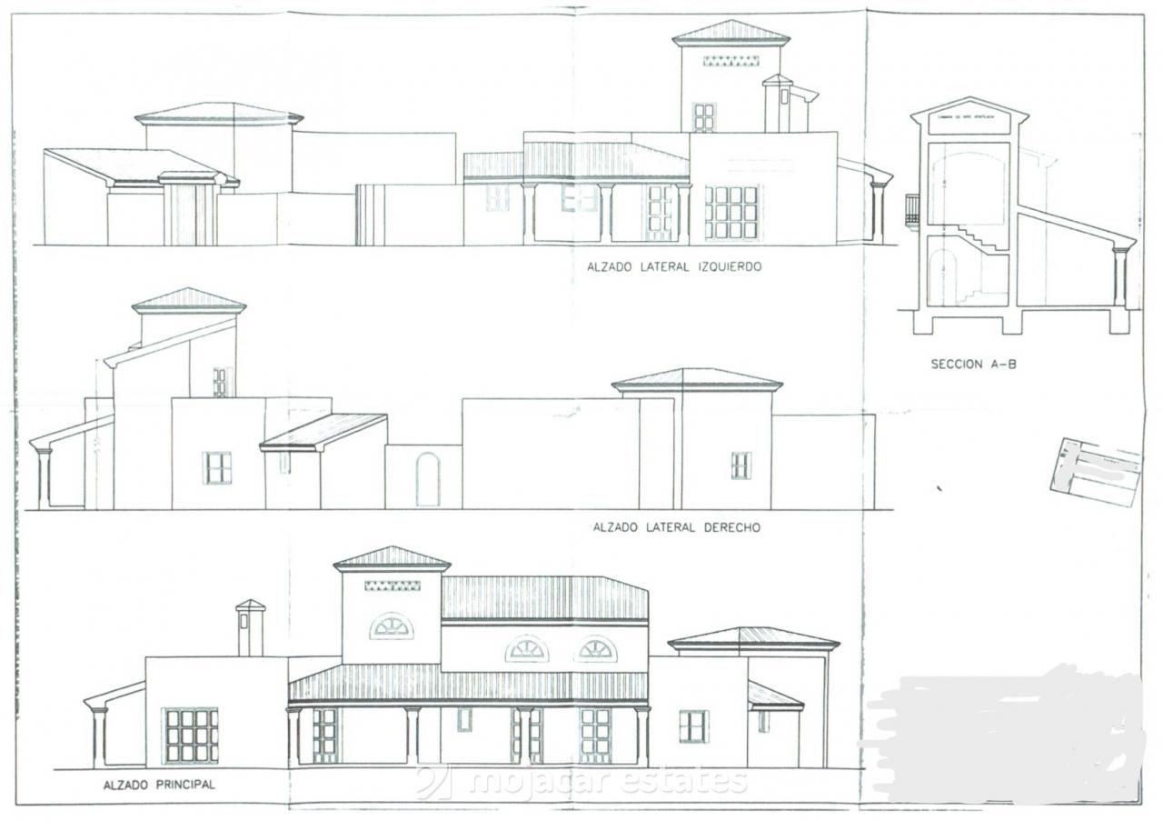
A large plot of rustic land of 18,356m2 located in beautiful countryside with sea and mountain views and a licence for building a 230m2 house near the village of Bedar in Almeria, Andalusia.
The rustic land is being sold with a project in place to build a 2 floor single family dwelling of 230m2 with 4 bedrooms and 4 bathrooms arranged around a central courtyard. The plans have two sitting rooms, a dining room, kitchen, utility room and an office. The project has a unique design and the finished house would make an amazing home with gorgeous views set in a very peaceful location and near to the Buddhist Centre. Water and electricity points for connection are close by.
This price is for the land and the project. It does not include the costs of building the property, these would be incurred by the purchaser.
Location: Situated along an asphalted rural road. 600m above sea level. 6.5 km from Bedar town or a 15 minute drive. See the pin on google maps above.
Airports
Almeria airport is a 35-minute drive, Murcia airport is 1 hour 10 minutes, Alicante airport is 2 hours and Malaga airport is 2 hours 30 minutes.
4 Golf Courses
Mojacar: Marina de la Torre, Vera: Valle del Este, Cuevas de Almanzora: Desert Springs, Pulpi: Aguilon Golf.
About Us
Mojacar Estates have been running successfully as an independent property sales and holiday rentals agency since 1982. Our dedicated team, who have all been working within this industry for more than 20 years, offer a professional and knowledgeable service to our clients. Our team speaks fluent Spanish, English and German. We offer properties for sale and rental in Mojacar and surrounding areas of Almeria, including Turre, Garrucha, Vera Playa, Los Gallardos, Villaricos and San Juan de los Terreros.
The indicated price does not include the taxes and expenses derived from the sale (ITP at the current tax rate, notary, registration and lawyer fees). We remind you that as a consumer you have the right to be informed and given the corresponding informative documentation, depending on the case, based on the provisions of Decree 218/05 of 11 October which regulates the Regulations on Consumer Information in the sale and rental of housing in Andalusia.
* La Torrecica Bedar — #ME 2847
* Land
* Resale
* Land area 1.8356 hectares
* Water Possible
* Electricity Possible
* Telephone Possible
* Internet Possible
























