Commercial For Sale in

480,000€
For Sale

Property Details

  • Ref: 18889-CBS2403EAS-11667
  • Type: Commercial
  • Availability: For Sale
  • Tenure: Freehold
  • Make Enquiry

Property Summary

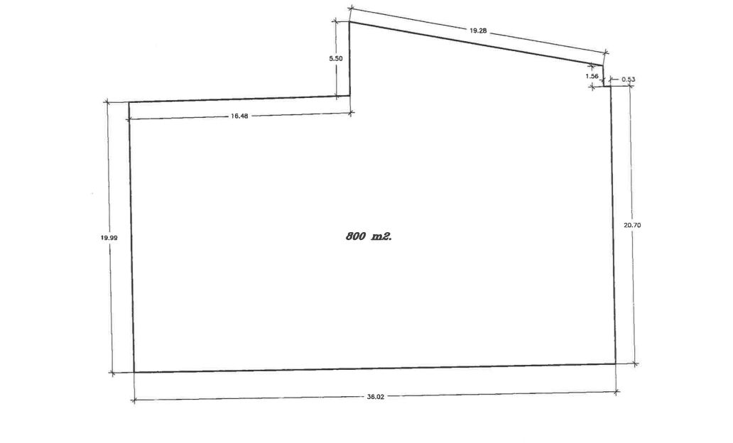
¡UNiQUE OPPORTUNiTY iN TORREMENDO! 800 sqm plot in the urban center of Torremendo, Orihuela Costa, Alicante.
Land Description:
Area: 800 sqm of

Property Features

  • vistas al mar

Full Details

¡UNiQUE OPPORTUNiTY iN TORREMENDO! 800 sqm plot in the urban center of Torremendo, Orihuela Costa, Alicante.
Land Description:
Area: 800 sqm of 100% buildable urban land.
Offered Price: 480,000 euros.
Housing Project:
Approved Preliminary Project: Possibility to develop a project with 16 homes distributed over two levels with a solarium.
Distribution: 8 homes on the ground floor and 8 on the first floor.
Functional Design: Each home consists of 2 bedrooms, 2 full bathrooms, a kitchen with a breakfast bar, a spacious living-dining room, and a terrace.
Additional Storage: All homes include a storage room on the solarium level.
Additional Features:
Ground-Floor Homes: Expandable front terrace for enjoying the outdoors.
First-Floor Homes: Private solarium accessible from the terrace.
Unbeatable Location:
Urban Center: The plot is located in the heart of the charming village of Torremendo.
Picturesque Project: Enjoy the tranquility and authenticity of this picturesque village.
This is a unique opportunity to invest in a housing project in a privileged location. Feel free to contact us for more details or to schedule a visit to the land!

  • Make Enquiry